Atendimento WhatsApp
Fotos
Informações
Contato
Mapa

Início > Vendas > CAMPO LARGO > TERRENO > TEC0003-JM-RIC

TERRENO em CAMPO LARGO - Referência: TEC0003-JM-RIC

R$ 450.000,00
Simular financiamento   Contato via Whatsapp  

Descrição

Terreno para chácara em condomínio fechado na Região Metropolitana de Curitiba, localizado na Rua Araruna, número 90, na Vila Conceição em Campo Largo/PR.

Área privativa de 1.060,00 m²

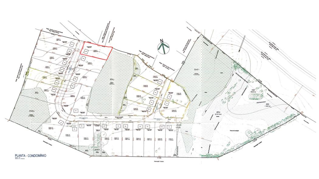
Anuncio referente ao Casa 02 do condomínio, destacada na imagem do mapa em branco.

A infraestrutura do condomínio conta com portaria, asfalto para acesso de todos os imóveis, lago e futuramente um espaço de lazer próximo ao lago.

Agende a sua visita!

Ref.: TEC0003-JM

*** Os valores podem ser alterados sem aviso prévio

CRECI-PR 25.221F

Detalhes do Imóvel

ReferênciaTEC0003-JM-RIC
EndereçoRua Araruna,
BairroVila Conceição
MunicípioCAMPO LARGO
UFPR
Tipo de usoresidencial
Valor totalR$ 450.000,00


Entre em contato


Compartilhe este imóvel


Localização: Rua Araruna - Vila Conceição - CAMPO LARGO/PR

Academias
Escolas
Hospitais
Farmácias
Padarias
Shoppings
Bancos

andre@galvao.imb.br

Rua Emiliano Perneta, 390 - Sala 612 - Centro - Curitiba - PR - Ver no Mapa

CRECI J07217